23456 Canna court , Wildewood , California ,Maryland Zip 20619
Monday - Friday 09:00-05:00 (GMT-7)

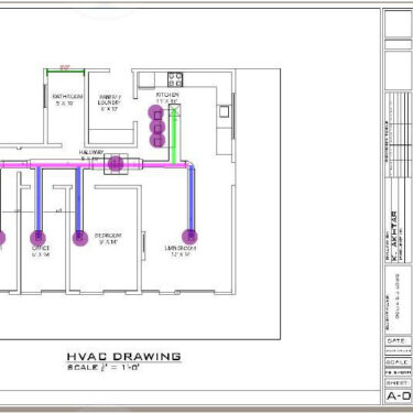
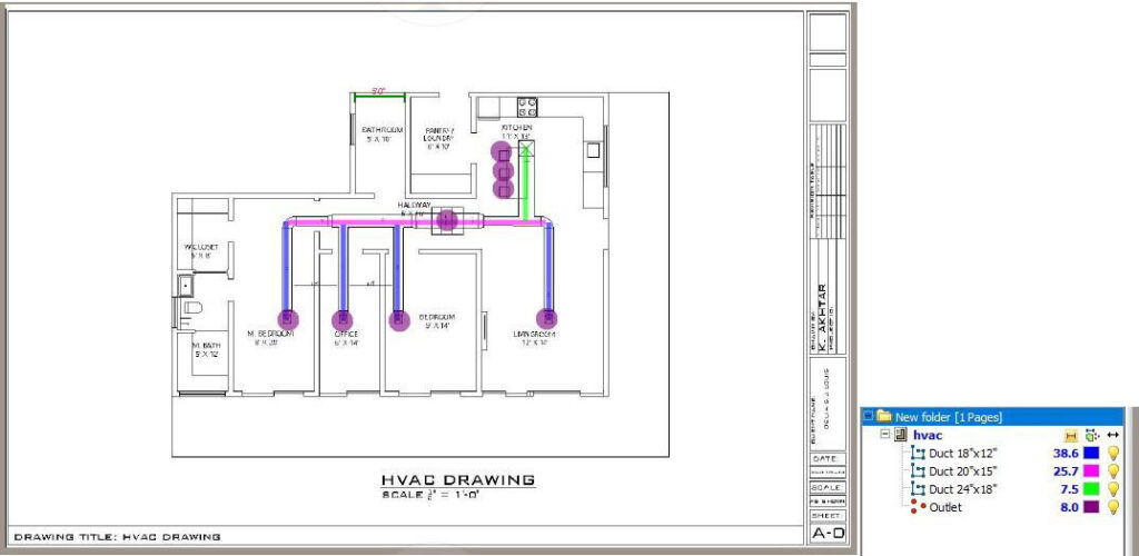
HVAC

HVAC (Heating, Ventilation, and Air Conditioning) work involves installing, repairing, and maintaining systems for temperature and air quality control. This includes HVAC units, ductwork, and control systems. The scope varies by building size and complexity. Residential projects might involve basic unit installations and repairs, while commercial buildings may need complex ductwork and maintenance for large systems like boilers and rooftop units.

Proline Estimation offers precise HVAC estimates through our team of expert mechanical engineers. Trust us for accurate and reliable HVAC calculations.

Attention!

Clear, Detailed, Reliable! Estimation Services You Can Trust!

Clear, Detailed, Reliable! Estimation Services You Can Trust!